Garis Sloting Panas Rolledminangka peralatan produksi penting sing digunakake ing industri pangolahan logam. Fungsi utama yaiku ngethok gulu logam sing luwih akeh sing luwih akeh dadi pirang-pirang lapisan jembar sing dibutuhake ing sadawane arah dawa. Iki jalur biasane digunakake ing gulung, blanking, proses kadhemen lan stamping, lan dadi bahan dhasar kanggo macem-macem produk industri. Artikel iki bakal ngenalake alur kerja, paramèter teknis, masalah operasi umum lan solusi mesin slitting panas sing rinci kanthi rinci. Yen sampeyan kudu entuk luwih akeh paramèter utawa informasi video, welcome kanggo takon karo gritter baja!

Piring sing digulung panas yaiku piring baja utawa lapisan sing digulung sawise dadi panas. Kaluwihan utama kalebu:
Kekanen dhuwur: piring sing digulung panas diproses ing suhu sing dhuwur, sing bisa ngilangi stres internal lan nambah kekarepan materi.
Efektivitas biaya: dibandhingake karo piring sing diowahi kadhemen, piring sing digulung kanthi biaya produksi luwih murah lan cocog kanggo produksi skala gedhe.
Efisiensi produksi sing dhuwur: Mesin slitting panas bisa cepet lan efisien irisan gelung gedhe menyang jembar sing dibutuhake kanggo adaptasi kanggo permintaan pasar.
Amarga ciri kasebut, piring sing diluncurake panas wis digunakake ing struktur bangunan, manufaktur mesin lan lapangan liyane.
|
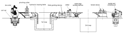
Loading forGaris Sloting Panas Rolled: Operator feed coil sing diluncurake panas menyang mandrel deciler. Machoki mesin slitting sing gulung panas: Decoiler ngeculake kumpulan utama lan feed baja menyang sirah sing slitting. Slitting kanggo garis slitting panas sing digulung: Ing sirah slitting, baja kasebut ora ana pirang-pirang sempit kanthi agul-agul rotasi. Pemriksaan kanggo mesin slitting panas sing digulung: Operator kasebut mriksa saben strand kanggo mesthekake yen spesifikasi spesifikasi lan kahanan pinggiran cocog karo syarat kasebut. Relief stres kanggo garis sliting panas sing diluncurake: luntur liwat lubang annular kanggo ngilangi stres materi sawise slitting lan njamin. Bundling lan kemasan: bundle lan paket saben strand miturut syarat pelanggan. |
![]() |
Model
Model 1
Model 2
Model 3
Model 4
Coil asli
Piring panas
Piring panas
Piring panas
Piring panas
Ketebalan materi
0.8mm-6.0mm
0,8mm-6.0mm
2.0mm-12.0mm
3.0mm-16.0mm
Jembar materi
1600mm (max)
1800mm (max)
2000mm (max)
2200mm (max)
Bobot Coil
30ton (max)
30ton (max)
30ton (max)
30ton (max)
Akurasi ambane
± 0,15mm
± 0,15mm
± 0.2mm
± 0.3mm
Kacepetan unit
120m / min (maksimal)
120m / min (maksimal)
80m / min (max)
60m / min (maksimal)
|
① Mesin Slitting Panas Panas kanthi kapasitas slitting efisiensi efisiensi Fitur sing misuwur sakaMesin Slitting Panas RolledApa bisa uga slit nganti 40 belang sempit ing wektu sing padha. Fungsi iki memenuhi kabutuhan pelanggan kanggo produksi skala gedhe. Kanthi nyepetake industrialisasi, permintaan pasar tuwuh kanggo jalur logam saya akeh, utamane ing industri kayata konstruksi, pabrik otomatis lan peralatan mortomobile. Kapasitas irisan sing dhuwur saka garis slitting sing digulung panas mbisakake pabrikan kanggo nyedhiyakake pirang-pirang produk sing mumpuni ing wektu sing cendhak, saéngga ningkatake efisiensi produksi lan nyuda biaya unit. |
![]() |
|
Otomatis Slitting Mesin Gulung Otomatis Otomatis Garis slitting panas sing nganggo desain otomatis lan dilengkapi sistem kontrol maju kanggo entuk operasi kecepatan kanthi kacepetan kanthi dhuwur. Kacepetan produksi maksimal bisa tekan 120 m / min, tegese luwih akeh bahan bisa diproses saben unit wektu, luwih nambah efisiensi produksi. Desain otomatis sing lengkap ora mung nyuda kabutuhan campur tangan manual, nanging uga bisa nyuda kemungkinan kesalahan operasi manungsa lan nambah konsistensi produk lan kualitas. Sistem kontrol otomatis Slitting Hot bisa ngawasi proses produksi kanthi nyata lan nyetel paramèter wektu kanggo nyukupi kebutuhan bahan lan kekandelan sing beda. |
![]() |
|
Mesin Slitting Panas Rol ③customized Supaya luwih cocog karo kabutuhan pelanggan, artase baja bajaS Solusi Line Panas Sloting Sloting Sloting Panas. Miturut gambar sing diwenehake dening pelanggan lan kabutuhan produksi nyata, kecepatan baja kringet bisa ngrancang solusi manufaktur mesin slitting mesin sing beda-beda kanggo njamin efisi babagan proses produksi kanggo pelanggan. Mesin Slitting Gelang Rolah King Mesin Slitting Cahya: khusus kanggo pangolahan guling kanthi kekandelan 0.2mm nganti 3mm. Mesin Slitting Sedheng Arium Gauge: Cocog kanggo koyo kanthi kekandelan 3mm nganti 6mm. Mesin Slitting Heavy: Canak ngolah guling kanthi kekandelan 6mm nganti 16mm. |
![]() |
TheGaris Sloting Panas Rolledbisa uga ngasilake lengkeh mengko sajrone proses slitting. Bisa uga disebabake dening alasan ing ngisor iki:
1. Langsung bahan mentah:
Tekanan plate baja ora diilangi kanthi rampung sajrone proses gulung. Sawise shearing longitudinal, stres dibebasake lan piring ditekuk. Nalika stres ing tengah piring dibebasake ing sisih loro, piring kasebut mbengkongake; Yen stres ing loro-lorone piring dibebasake ing tengah, plate mbengkongake menyang tengah.
2. Bendungan Amarga Burrs:
Burrs luwih gedhe amarga penyesuaian leren agul nalika shearing longitudinal. Nalika muter, burr ing pinggir padha karo ketebalan piring sing luwih gedhe, sing nyebabake pinggir dalan lan bend.
3. Bendungan Amarga kesenjangan sing ora rata ing antarane lading ndhuwur lan ngisor:
Yen kesenjangan kiwa lan tengen luwih gedhe, indhisi bagean sing luwih gedhe uga luwih gedhe, lan sisih kanthi celah sing luwih cilik tinimbang kesenjangan kiwa lan tengen duwe lambung sing luwih gedhe, mula mbengkongake.
4. Bendungan disebabake dening ketegangan sing ora rata:
Nalika muter, tension sing padha kudu ditrapake ing kabeh plato baja. Yen ketegangan wis klempakan ing sisih siji, mbengkong bakal kedadeyan.
5. Bendungan disebabake gerakan kanthi cepet piranti koreksi:
Sajrone pangolahan, yen kacepetan koreksi panyebaran cepet banget, kontak karo kontak karo koreksi panyimpangan bakal dadi sebagian lan mbengkongake.
Yen bahan sheet mbengkongake sawise shearing longitudinal, bakal nyebabake mengaruhi kualitas pelat sheet, mula kudu diilangi. Perhatian kudu dibayar kanthi alasan kayata label rolling, peralatan, lan cara operasi.